媒体管理器

选择命名空间

媒体文件

[根目录] 中的文件

文件

日期:
2019/01/06 08:59
名称:
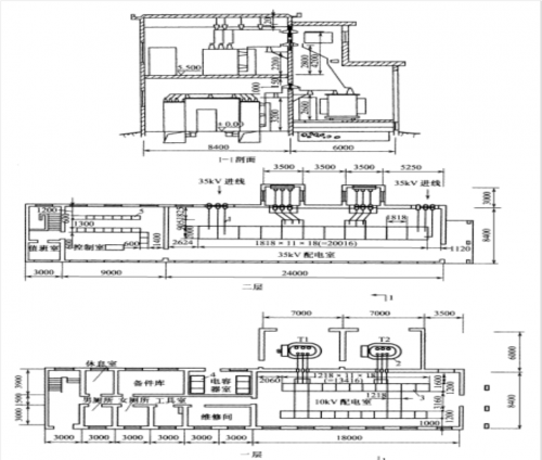
变电所布置和结构.png
格式:
PNG
大小:
282KB
宽度:
936
高度:
795
相关的:
建筑变配电所